click to enable zoom
loading...
We didn't find any results
open map
View
Roadmap Satellite Hybrid Terrain
My Location Fullscreen Prev Next

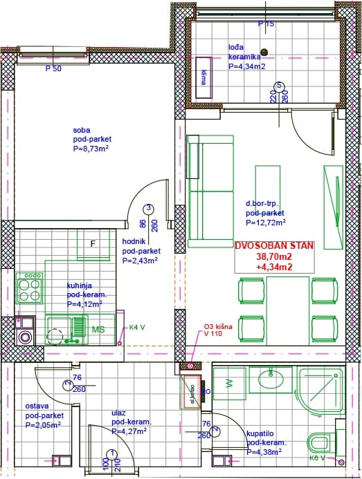
Napomena: Prikazani izgledi unutrašnjosti stanova su ILUSTRATIVNI, i predstavljaju besplatnu ideju kupcima kako se stanovi mogu urediti.

Stan A1

Dvosoban stan – 43,04 m2 (38,70 m2 + 4,34 m2)

Broj Prostorija P=m2
1 Ulaz 4,27
2 Hodnik 2,43
3 Ostava 2,05
4 Kupatilo 4,38
5 Kuhinja 4,12
6 Soba 8,73
7 Dnevni boravak – trpezarija 12,72
  UKUPNO 38,70
8 Lođa 4,34
  SVEUKUPNO 43,04

Compare Listings