






Napomena: Prikazani izgledi unutrašnjosti stanova su ILUSTRATIVNI, i predstavljaju besplatnu ideju kupcima kako se stanovi mogu urediti.
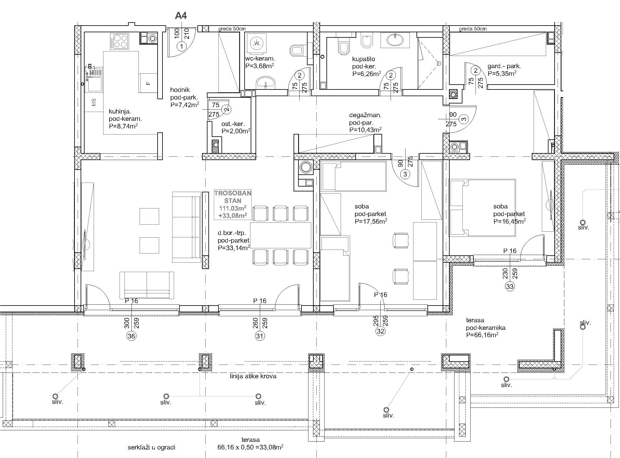
Stan A4
Trosoban stan – 144,11 m2 (111,03 m2 + terasa 33,08 m2)
| Broj | Prostorija | P=m2 |
|---|---|---|
| 1 | Hodnik | 7,42 |
| 2 | Ostava | 2,00 |
| 3 | Kupatilo | 6,26 |
| 4 | WC | 3,68 |
| 5 | Degaž | 10,43 |
| 6 | Garderober | 5,35 |
| 7 | Kuhinja | 8,74 |
| 8 | Dnevni boravak i trpezarija | 33,14 |
| 9 | Spavaća soba | 16,45 |
| 10 | Soba | 17,56 |
| 11 | Terasa – 50% (Stvarna kvadratura = 66,16 m2) | 33,08 |
